Artboard 1? alert-icon? Artboard 1? ? ? delete-icon? edit-icon? email-icon hide-hover-icon? Artboard 1? login-icon-white Artboard 1? next-icon-left next-icon-right-left next-icon-left-ochre next-icon next-icon-right-grey next-icon-right-ochre plus-with-circle-iconP search-fw-icon? search-icon-ochre search-icon-white

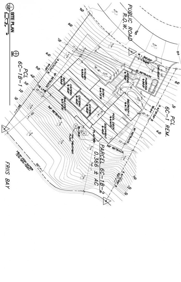
6c-1b-2 St. Quaco & Zimmerman, Coral Bay, St. John, USVI 00830

$410,000

Highlights of 6c-1b-2 St. Quaco & Zimmerman

Area
St John
Island
St John
Quarter
Coral Bay
Subdivision
Other:
Estate
St. Quaco & Zimmerman
MLS #
07-454
Status
Closed
  • More About 6c-1b-2 St. Quaco & Zimmerman, St. John, USVI, 00830

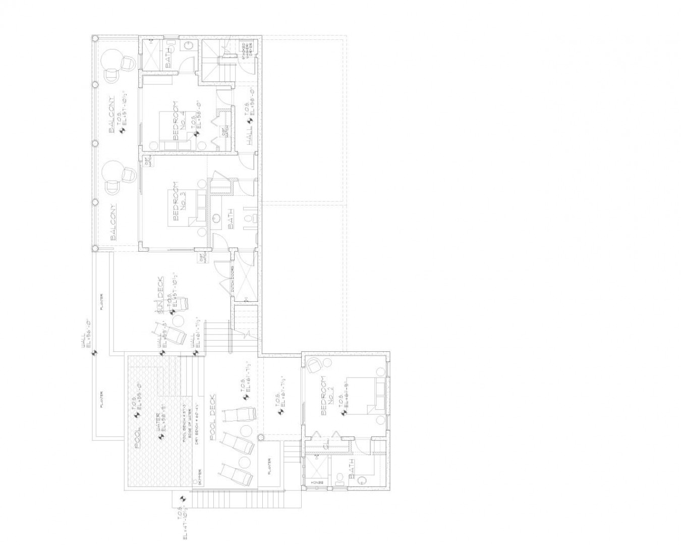
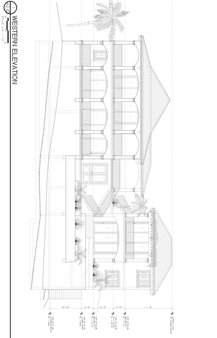
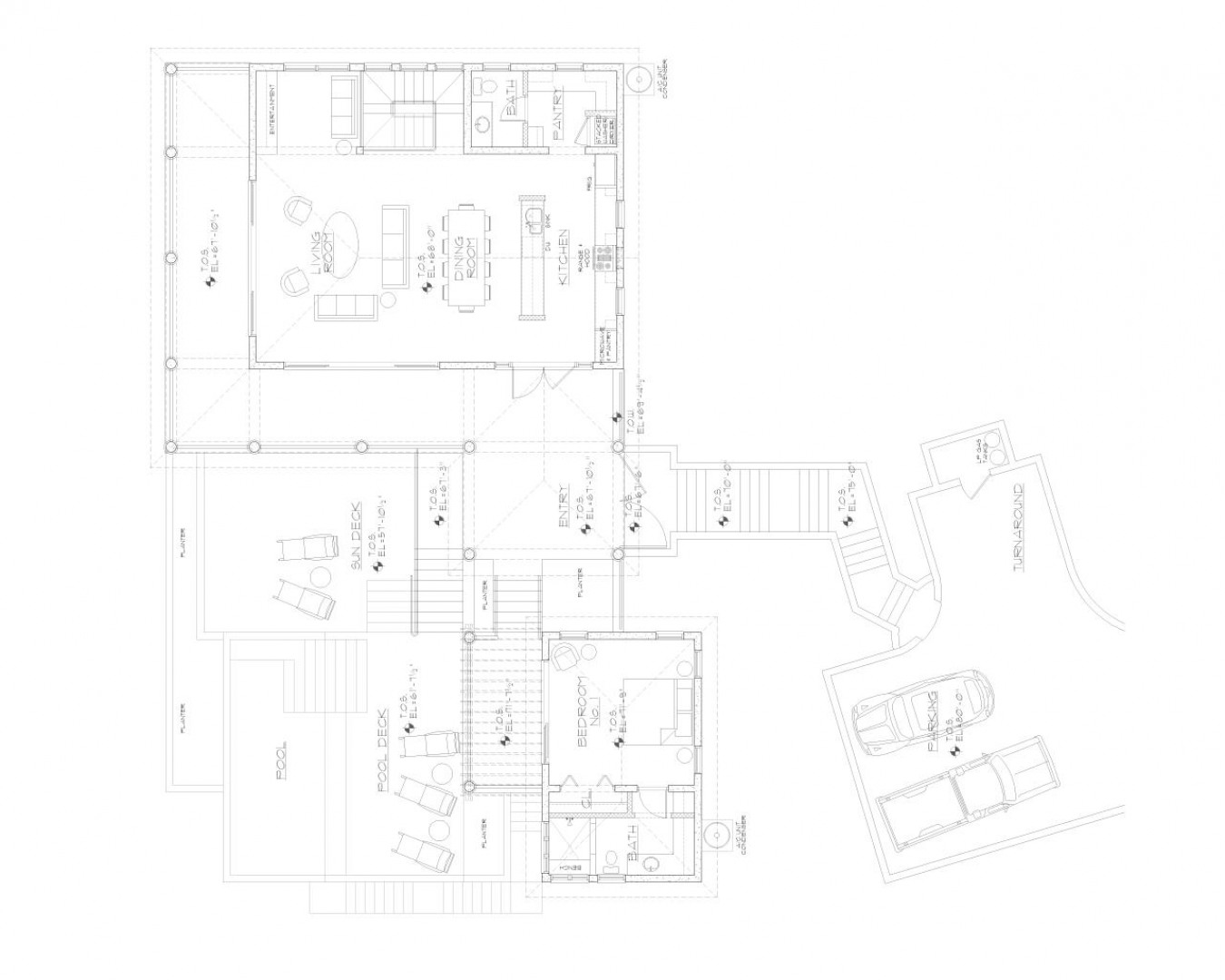
    Owner says sell! Best oceanfront value on St. John! Incredible waterfront lot featuring panoramic views of Flannagan, Leduck, the BVIs and Caribbean Sea. Enjoy the sounds of the surf breaking on the nearby barrier reef and snorkel from 132 feet of shoreline.Includes CZM permits for fabulous 4 bedroom pool villa. Owner financing with $300K down! BUYER TO PAY TRANSFER TAX.
  • Additional Info
    • Easements: Of Record
    • Restrictions: CCRs
    • Waterfront: Y
    • Grade: Moderate
    • Road Assessment Year: 2007.00
    • Zoning: R-2Residential
  • Amenities
    • View: British Virgin Islan, Caribbean, East/sunrise
  • Fees and Taxes
    • Tax Year: 2005
    • Taxes: 402.93

Listing courtesy of Islandia Real Estate, (340) 776-6666.

  • This field is for validation purposes and should be left unchanged.

Map of 6c-1b-2 St. Quaco & Zimmerman Coral Bay St. John, US Virgin Islands 00830

Loading Map...

Picture of an interior
Picture of an interior
Picture of an interior
Picture of an interior
Picture of an interior
Picture of an interior
Picture of an interior
Picture of an interior
Picture of an interior
Picture of an interior
  • This field is for validation purposes and should be left unchanged.
>

By joining you agree to our Terms of Use and Privacy Policy